幕墙技术最初引入中国就是从最常规的构件式幕墙起步的,经过各种阶段的技术更新,经过30多年的发展,装饰材料不断更新、技术不断进步、从没有规范到有规范的更新等等,这些都使中国的幕墙技术应用逐渐符合中国地域环境的要求。
从最初中国只有几十家的幕墙企业,发展到今天全国近千家的幕墙企业,可以说这项产业发展的已经非常庞大,然而在发展迅速的过程中难免会有出现各种技术人才短缺的状况,也就造成了常规的幕墙图纸、施工技术竟然还停留在发展初期阶段。山东泰信幕墙工程有限公司,不断组织技术人员参加各种幕墙论坛、培训,对现场的安装施工人员进行专业幕墙施工技术培训。摒弃传统错误做法,不断推陈出新,严格保证工程质量。
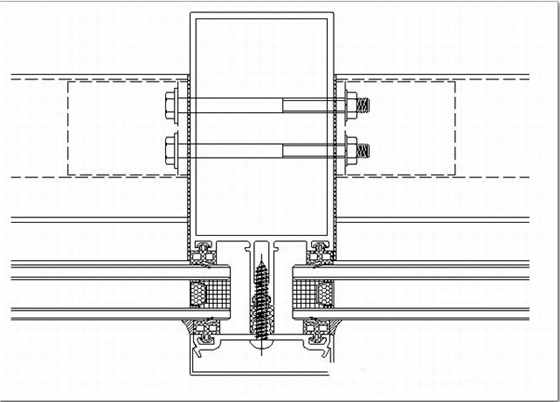
常规构件式幕墙基础知识
1、明框构件式玻璃幕墙,为了防止三元乙丙胶条在使用过程中渗漏,传统习惯设计成在三元乙丙胶条的外侧打耐候密封胶,这是习惯性的材料使用配合错误,首先三元乙丙胶条与耐候是截然不同的两种材料,他们的变形性能、弹性性能截然不同、耐老化时间周期不同,往往是三元乙丙胶条先老化造成外侧耐候密封胶跟随断裂,造成所理想的防水渗漏失效,因此耐候密封胶只有打在明框材料的内侧,同时又有三元乙丙在外侧保护,才会具有更长时间的防渗漏功能。
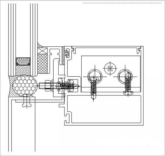
2、隐框玻璃幕墙,隐框玻璃的底部应设置玻璃托板,这是多年的规范及安全要求,然而目前很多不专业的幕墙设计还是会出现不设计玻璃托板的构造措施!
3、玻璃幕墙开启窗扇的中空玻璃应注意:中空玻璃在生产过程中自身的合片结构较,一定要与铝合金开启窗扇的粘接结构较处在同一平面直线上,这个问题也是没有彻底引起幕墙技术人员的重视,一旦两条结构较不出在同一平面直线上,那么这块玻璃将会始终处在随时可能坠落的状态。
幕墙安装施工企业,要注重现场安装施工的质量和安全,同时也要做好幕墙技术知识的普及,加强防范措施,吸取经验,不断提高幕墙工程质量。
全国服务热线: 400-0916-216



