玻璃幕墙是由金属构件和玻璃板组成的建筑外墙面维护结构,分明框、半明框、和隐框玻璃幕墙三种。构成玻璃幕墙的材料主要有:钢、铝合金、玻璃、不锈钢和粘结密封剂。在实际的幕墙设计中,应注意防火分区的设计。防火分区是指在设计中将建筑物的平面和空间以防火墙、防火门窗、防火卷帘及一定耐火极限的楼板等分成若干区。防火分区包括楼层的水平分区和垂直分区两部分。在建筑物内采取划分防火分区这一措施,可以在建筑物一旦发生火灾时,有效地把火势控制在一定的范围内,阻止火势蔓延扩大,减少火灾损失,同时可以为人员安全疏散、消防扑救提供有力条件。防火分区的重要性已在无数次火灾教训中得到验证。
防火分区的概念及划分类别
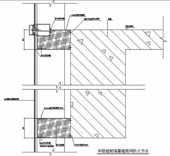
防火分区,按照防止火灾向防火分区以外扩大蔓延的功能可以分为两类:其一是竖向防火分区,用以防止多层或高层建筑物层与层之间竖向发生火灾蔓延。竖向防火分区是指耐火性能较好的楼板及窗间墙(含窗下墙),在建筑物的垂直方向对每个楼层进行的防火分隔。
其二是水平防火分区,用以防止火灾在水平方向扩大蔓延。水平防火分区是指用防火墙或防火门、防火卷帘等防火分隔物将各楼层在水平方向分隔出的防火区域。它可以阻止火灾在楼层的水平方向蔓延。防火分区应用防火墙分隔。如确有困难时,可采用防火卷帘加冷却水幕或闭式喷水系统,或采用防火分隔水幕分隔。
从防火的角度看,防火分区划分得越小,越有利于保证建筑物的防火安全。防火分区面积大小的确定应考虑建筑物的使用性质、重要性、火灾危险性、建筑物高度、消防扑救能力以及火灾蔓延的速度等因素。
在建筑幕墙设计与施工中,应充分做好竖直与水平两个防火分区的防火设计。在玻璃幕墙安装施工现场,要明确自己的职责,按建设程序办事,严格按规范设计和施工。降低玻璃幕墙火灾的危险性,充分服务于建筑玻璃幕墙的整个设计、安装施工工程。
全国服务热线: 400-0916-216

